ePrivacy and GPDR Cookie Consent by TermsFeed Generator
Pronájem velkého bytu 5+1, ul. Křiby, Zlín Novinka

Křiby 4707, 760 05 Zlín

Pronájem velkého bytu 5+1, ul. Křiby, Zlín

99 m2

99 m2

Byt

19 600 Kč + zálohy na služby a energie 5 000 Kč + kauce + zprostředkování

Nadstandardně prostorný rodinný byt, balkon s výhledem a pouze jeden soused na patře
- to jsou jen některé z výhod, které můžete získat s pronajmutím tohoto bytu o dispozici 5+1.

Samotný bytový dům je ve stavu po provedené revitalizaci (zateplený plášť, nová střecha, nové balkony).

Výhodou lokality je bezpochyby kompletní síť občanské vybavenosti, umístění v blízkosti centrálního parku Jižní Svahy, koupaliště a zastávek MHD.

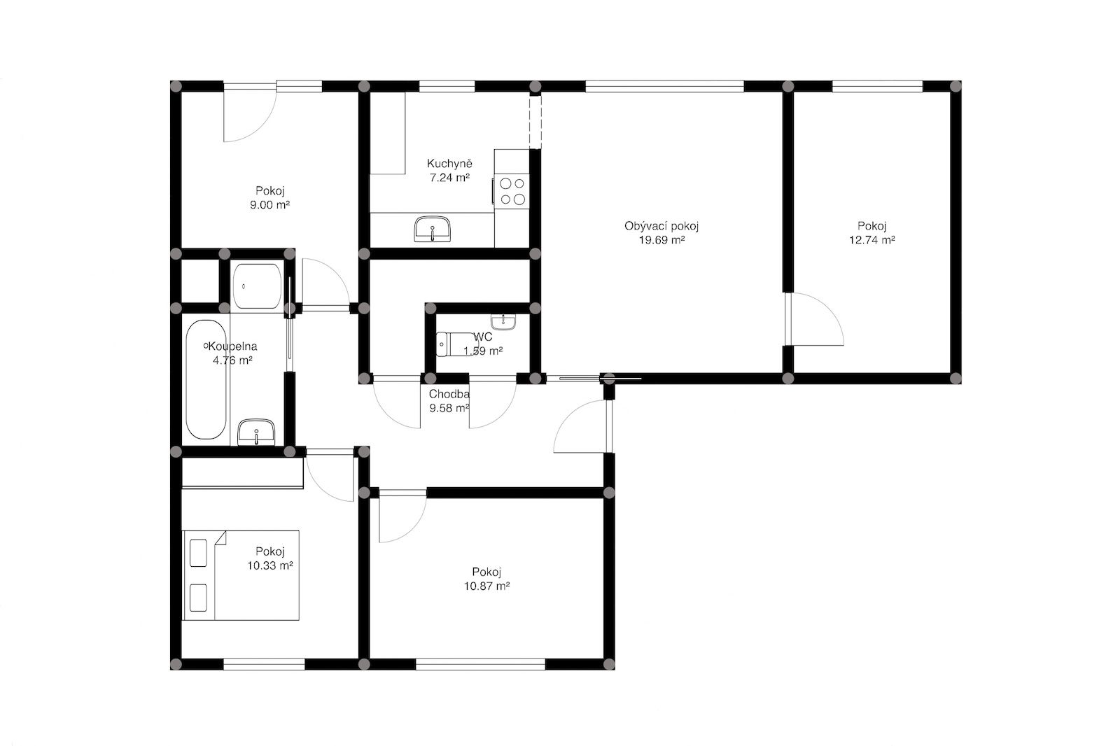
Byt nabízí podlahovou plochu 99 m2 s DISPOZICÍ:
prostorná centrální vstupní chodba, 5 samostatných pokojů, kuchyň, koupelna s vanou i sprchovým koutem, samostatné WC, prádelna, balkon a sklepní kóje.

STAV BYTU:
byt je aktuálně ve stavu po provedené modernizaci, vybaven zcela novou kuchyňskou linkou se spotřebiči a připraven k okamžitému užívání. Jeden pokoj je vybaven manželským dvojlůžkem a velkou šatní skříní. Jinak je byt bez nábytku.

PODMÍNKY:
měsíční nájemné činí částku 19.600,- Kč,
měsíční zúčtovatelné poplatky za vodu, topení, spotřebu elektrické energie a doprovodné služby v rámci domu činí částku
5.000,- Kč,
vratná kauce 40.000,- Kč,
provize realitní kanceláře 19.600,- + DPH.

Byt k dispozici ihned.

Pokud hledáte nový domov s dostatkem prostoru a klidné bydlení, je léty prověřená prostorná dispozice právě pro Vás.
 

Lokalita

Přehledová tabulka

Počet pokojů 5
Kuchyně 1
Celková plocha 99 m2
Obytná plocha 99 m2
Patro 8
Podlaží 9
Typ Byt
Zavolejte mi

Fotogalerie

 obrázek  obrázek  obrázek  obrázek  obrázek  obrázek  obrázek  obrázek  obrázek  obrázek  obrázek  obrázek  obrázek  obrázek  obrázek  obrázek  obrázek

Zaujala vás tato nemovitost?

Neváhejte mě kontaktovat, ráda vám sdělím více a zajistím prohlídku nemovitosti.

Zavolejte mi

Služby, které jsou již zahrnuty v ceně mého zprostředkování

Tržní ocenění nemovitosti

Zjistím skutečnou hodnotu Vašeho domu či bytu.

Průkaz energetické náročnosti budov (PENB)

Zajistím důležitý dokument pro prodej.

Profesionální fotografie, videa, záběry z dronu

Vaše nemovitost bude pro kupující atraktivnější.

Inzerce na realitních portálech

Vaši nemovitost uvidí tisíce lidí online.

Dokumentace externí advokátní kanceláří

Zajistím, že vše bude právně v pořádku.

Advokátní úschova kupní ceny

Peníze jsou v bezpečí až do úplného převodu vlastnictví.

Vklad do katastru nemovitostí

Zajistím vklad a úhradu poplatku.

Přepis energií

Po prodeji převedu všechny služby na nového majitele.

Hledáte nemovitost? Kontaktujte mě.

Najdete mě na

© Kateřina Struhelková 2026 - Všechna práva vyhrazena

Administrace Upravit předvolby cookies Vytvořeno servisdesign